|
Kaseta filtracyjna FBZ do kanałów prostokątnych z filtrem kasetowym FKZ.
Kasety filtracyjne z filtrami kasetowymi stosowane są do oczyszczania nawiewanego a także wywiewanego powietrza w systemach wentylacji i klimatyzacji, w kanałach o przekroju prostokątnym. Służą do zabezpieczania przewodów, wymienników ciepła, wentylatorów, nagrzewnic, chłodnic, przyrządów automatyki i innego sprzętu wentylacyjnego przed wpływem kurzu i innych zanieczyszczeń. Filtry wstępnego oczyszczania mogą być stosowane jako pierwszy stopień oczyszczania, przed bardziej efektywnymi filtrami ostatecznymi.
Specyfikacja |
Konstrukcja
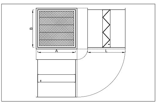
Obudowa wykonana jest ze stali ocynkowanej. Wewnętrzny filtr kasetowy wykonany jest w formie harmonijki umieszczonej w ramie w celu powiększenia powierzchni filtracji. Wykonany jest z włókniny syntetycznej i zabezpieczony jest metalową siatką przed jego deformacją. Uchylna klapa kasety wyposażona jest w zamek zapewniający szybki dostępu do wymiennego filtra kasetowego. Kasety filtracyjne posiadają kompaktowe gabaryty, co pozwala wykorzystać je gdy przestrzeń montażowa jest ograniczona. Filtry kasetowe wykonane są z materiałów filtrujących z klasą czyszczenia G3, G4 lub F5.
Montaż
Kasety filtracyjne FBZ montuje się przed nagrzewnicą i wentylatorem według kierunku przepływu powietrza. Kierunek ruchu powietrza powinien odpowiadać strzałce na filtrze. Przy montażu, należy pamiętać o pozostawieniu wolnej przestrzeni umożliwiającej wyczyszczenie lub wymianę elementu filtrującego.
Dane techniczne |

| A [mm] |
B [mm] |
L [mm] |
G [mm] |
Profil ramki |
Klasa filtracji |
|
|---|---|---|---|---|---|---|
| FB-300x150 | 300 | 150 | 200 | 50 / 100 | P20 | G3-F5 |
| FB-400x200 | 400 | 200 | 200 | 50 / 100 | P20 | G3-F5 |
| FB-400x300 | 400 | 300 | 200 | 50 / 100 | P20 | G3-F5 |
| FB-500x250 | 500 | 250 | 200 | 50 / 100 | P20 | G3-F5 |
| FB-600x300 | 600 | 300 | 200 | 50 / 100 | P20 | G3-F5 |
| FB-700x350 | 700 | 350 | 200 | 50 / 100 | P20 | G3-F5 |
| FB-800x400 | 800 | 400 | 200 | 50 / 100 | P20 | G3-F5 |
| FB-1000x500 | 1000 | 500 | 200 | 50 / 100 | P30 | G3-F5 |