|
Nagrzewnice gazowe KONDENSA to linia najbardziej zaawansowanych technologicznie urządzeń kondensacyjnych dostępnych na rynku. KONDENSA jest opracowana w oparciu o zamkniętą komorę spalania i palnik PREMIX. Zastosowana w urządzeniu technologia modulacyjna umożliwia płynną regulację mocy już od 20% przy sprawności przekraczającej 105%. Nagrzewnice KONDENSA są także dostępne z komorami mieszania z wentylatorem osiowym lub promieniowym.
Dane techniczne |
Zalety KONDENSA:
| PC032 | PC035 | PC043 | PC054 | PC072 | PC092 | ||
|---|---|---|---|---|---|---|---|
| moc grzewcza [kW] | min | 10,1 | 11,3 | 14,8 | 15,5 | 22,0 | 30,0 |
| max | 34,9 | 38,8 | 47,5 | 58,0 | 78,0 | 98,0 | |
| nominalne obciążenie cieplne [kW] | min | 10,2 | 11,7 | 15,5 | 16,3 | 23,1 | 31,5 |
| max | 32,8 | 36,5 | 44,8 | 54,0 | 73,2 | 93,4 | |
| sprawność [%]* | max | 101,0 | 103,5 | 105,0 | 105,0 | 105,0 | 105,0 |
| min | 94,1 | 94,1 | 94,3 | 93,1 | 93,8 | 95,3 | |
| zużycie gazu GZ50 (grupa E, G20) (15°C- 1013mbar) [m³/h] | min | 1,07 | 1,20 | 1,57 | 1,64 | 2,33 | 3,17 |
| max | 3,69 | 4,11 | 5,03 | 6,14 | 8,25 | 10,37 | |
| zużycie gazu GZ35 (grupa Ls, G2. 350) (15°C- 1013mbar) [m³/h] | min | 1,50 | 1,67 | 2,19 | 2,30 | 3,26 | - |
| max | 5,16 | 5,75 | 7,04 | 8,00 | 10,22 | - | |
| zużycie gazu LPG (grupa B/P, G30/G31) (15°C- 1013mbar) [kg/h] | min | 0,65 | 0,73 | 0,95 | 1,00 | 1,42 | 1,93 |
| max | 2,24 | 2,50 | 3,06 | 3,73 | 5,02 | 6,31 | |
| ilość kondensatu [lt/h] | 0,77 | 0,84 | 1,45 | 1,45 | 2,20 | 2,60 | |
| Ø rur ssania/ odprowadzania [mm] | 80/80 | 80/80 | 80/80 | 80/80 | 100/100 | 100/100 | |
| dostępne ciśnienie odprowadzenia spalin [Pa] | 70 | 80 | 120 | 120 | 120 | 120 | |
| natężenie przepływu powietrza (T 15°C) [m³/h] | 3.800 | 3.800 | 6.250 | 6.250 | 6.800 | 9.250 | |
| zasięg wyrzutu powietrza m | 24 | 25 | 30 | 32 | 34 | 38 | |
| przyrost temperatury powietrza [°C] | min | 7,7 | 8,8 | 7,1 | 7,5 | 9,7 | 9,8 |
| max | 24,7 | 27,5 | 20,5 | 24,8 | 30,9 | 28,9 | |
| obroty wentylatora [rpm] | 1350 | 1350 | 1350 | 1350 | 1350 | 1350 | |
| ilość / Ø kąt wentylatorta [mm] / [°] | (1)420/27° | (1)420/27° | (2)420/27° | (2)420/27° | (2)420/27° | (3)420/27° | |
| napięcie zasilające [V/Hz] | 230/50 | 230/50 | 230/50 | 230/50 | 230/50 | 230/50 | |
| pobór prądu [W] | 220 | 220 | 440 | 440 | 440 | 660 | |
| poziom hałasu (otwarta przestrzeń) (6m) [dB(A)] | 47,5 | 47,5 | 50,5 | 50,5 | 50,5 | 53,5 | |
| masa [kg] | 102 | 102 | 117 | 117 | 175 | 216 |
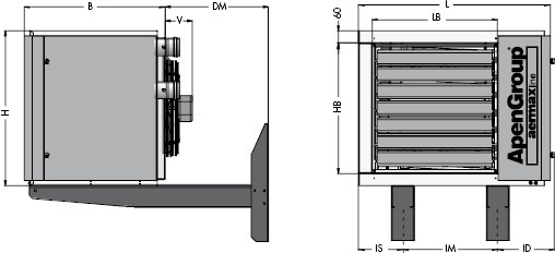
Montaż |

| Model | wymiary [mm] | kierownice powietrza | uchwyty montażowe | zasilanie gazu | ciężar | |||||||||
| L | B | H | V | HB | LB | IM | IS | ID | DM | GAS | GO | GV | Kg | |
| PC032 | 905 | 665 | 740 | 140 | 620 | 595 | 450 | 206 | 269 | 475 | 3/4’’ | 188 | 352 | 102 |
| PC035 | 905 | 665 | 740 | 140 | 620 | 595 | 450 | 206 | 269 | 475 | 3/4’’ | 188 | 352 | 102 |
| PC043 | 1245 | 665 | 740 | 140 | 620 | 935 | 780 | 228 | 257 | 475 | 3/4’’ | 188 | 352 | 117 |
| PC054 | 1245 | 665 | 740 | 140 | 620 | 935 | 780 | 228 | 257 | 475 | 3/4’’ | 188 | 352 | 117 |
| PC072 | 1405 | 775 | 810 | 140 | 690 | 1080 | 894 | 243 | 288 | 387 | 1’’ | 114 | 296 | 175 |
| PC092 | 1955 | 775 | 810 | 140 | 690 | 1632 | 1434 | 258 | 283 | 387 | 1’’ | 114 | 296 | 216 |
Automatyka |
![]() |
|
|
![]() |
PRZEŁĄCZNIK LATO/ZIMA
Panel sterowania może współdziałać z termostatem |
|
![]() |
||
|
Oprogramowanie KONDENSA.NET Oprogramowanie/System sterowania i zarządzania zainstalowany w zdalnym komputerze PC o wymaganiach systemowych Windows Vista/NT Computer umożliwia obsługę indywidualnie do 63 urządzeń, między innymi zarządzanie funkcjami zegara, temperatury, resetowanie oraz odczytanie ewentualnych informacji o błędach i zlokalizowanie przyczyny problemu. |
||