|
WSB - Wyrzutnia ścienna samoczynna.
Specyfikacja |
Zastosowanie:
Wyrzutnie ścienne samoczynne WSB stosuje się w celu zabezpieczenia instalacji przed opadami atmosferycznymi i zapewnienia właściwego wyrzutu powietrza do atmosfery. Wyrzutnie WSB przeznaczone są do montowania jako zakończenie przewodów wentylacyjnych prostokątnych. Stosuje je się w przypadkach, gdy jest użycie wyrzutni dachowych napotyka wyjątkowe trudności oraz gdy jest to uzasadnione względami budowlanymi lub użytkowymi.
Konstrukcja:
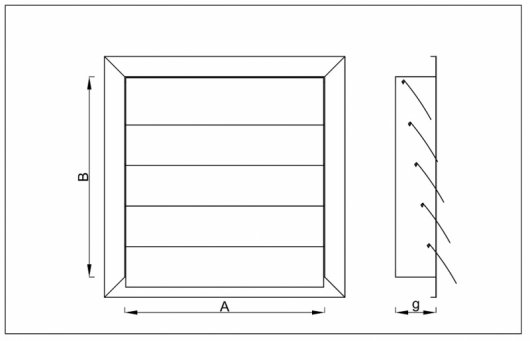
Konstrukcja wyrzutni przystosowana jest do łączenia w dowolne wielkości, zależnie od potrzeb i warunków miejscowych. Wyrzutnie przystosowane są do montażu w przegrodach budowlanych lub do łączenia z kanałami wentylacyjnymi o przekroju prostokątnym. Zamocowanie wyrzutni w przegrodzie budowlanej należy projektować indywidualnie. Wyrzutnie ścienne samoczynne WSB składają się z obudowy, żaluzji ruchomych aluminiowych, listew, zabezpieczonych antykorozyjnie w miejscach łączeń. Dla normalnego wykonania wyrzutni przyjęto powłokę antykorozyjną odpowiadającą odporności na działanie bezpośrednie czynników atmosferycznych.
Wyrzutnie ścienne samoczynne WSB produkowane są standardowo jako jednoelementowe o wielkościach od 300x300 do 800x800 lub modułowe do łączenia w sekcje.
Wersje wykonania:
Materiał:
Dobór:
Zaleca się dobór możliwie największej wielkości wyrzutni ściennej typu WSB w zależności od ilości napływu powietrza na wyrzutnię.
Sposób zamawiania:
W zamówieniu należy podać typ i wielkość wyrzutni, wariant materiałowy oraz symbol z niniejszej karty katalogowej.
Przykład oznaczania:
Wyrzutnia ścienna do kanałów o przekroju prostokątnym typ WSB o wymiarach 600x600 powinna być oznaczana w dokumentacji projektowej jako: - Wyrzutnia ścienna WSB-OC 600x600
Atesty i certyfikaty:
Wymiary |

| A [mm] |
B [mm] |
G [mm] |
Aef [m2] |
|
|---|---|---|---|---|
| 300x300 | 285 | 285 | 80 | 0,056 |
| 400x300 | 385 | 285 | 80 | 0,076 |
| 400x400 | 385 | 385 | 80 | 0,102 |
| 500x300 | 485 | 285 | 80 | 0,096 |
| 500x400 | 485 | 385 | 80 | 0,128 |
| 500x500 | 485 | 485 | 80 | 0,158 |
| 600x300 | 585 | 285 | 80 | 0,115 |
| 600x400 | 585 | 385 | 80 | 0,156 |
| 600x500 | 585 | 485 | 80 | 0,192 |
| 600x600 | 585 | 585 | 80 | 0,226 |
| 800x400 | 785 | 385 | 80 | 0,202 |
| 800x500 | 785 | 485 | 80 | 0,252 |
| 800x600 | 785 | 585 | 80 | 0,304 |
| 800x800 | 785 | 785 | 80 | 0,408 |
Na zamówienie produkowane są wyrzutnie o dowolnych wymiarach.