|
Informacje |
Wykonanie:
standardowe - z blachy ocynkowanej o grubości 0,90 mm - 1,00 mm
indywidualne - z blachy czarnej 2-3 mm
Połączenia systemowe:
za pomocą złączek OTW, OTS, OTU lub kołnierzy KS
Certyfikaty:
deklaracja zgodności
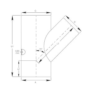
Dane techniczne |
|
D |
s [mm] |
L1 [mm] |
L2 [mm] |
L3 [mm] |
| Ø 80 | 0,90 | 300 | wynikowo | wynikowo |
| Ø 100 | 0,90 | 300 | wynikowo | wynikowo |
| Ø 120 | 0,90 | 350 | wynikowo | wynikowo |
| Ø 125 | 0,90 | 350 | wynikowo | wynikowo |
| Ø 140 | 0,90 | 350 | wynikowo | wynikowo |
| Ø 150 | 0,90 | 400 | wynikowo | wynikowo |
| Ø 160 | 0,90 | 400 | wynikowo | wynikowo |
| Ø 180 | 0,90 | 400 | wynikowo | wynikowo |
| Ø 200 | 0,90 | 450 | wynikowo | wynikowo |
| Ø 225 | 0,90 | 500 | wynikowo | wynikowo |
| Ø 250 | 0,90 | 500 | wynikowo | wynikowo |
| Ø 275 | 0,90 | 600 | wynikowo | wynikowo |
| Ø 300 | 0,90 | 600 | wynikowo | wynikowo |
| Ø 315 | 0,90 | 600 | wynikowo | wynikowo |
| Ø 350 | 0,90 | 700 | wynikowo | wynikowo |
| Ø 400 | 0,90 | 800 | wynikowo | wynikowo |
| Ø 450 | 0,90 | 950 | wynikowo | wynikowo |
| Ø 500 | 0,90 | 950 | wynikowo | wynikowo |
| Ø 550 | 0,90 | 1150 | wynikowo | wynikowo |
| Ø 600 | 0,90 | 1050 | wynikowo | wynikowo |
| Ø 630 | 0,90 | 1150 | wynikowo | wynikowo |
| Ø 650 | 0,90 | 1150 | wynikowo | wynikowo |
| Ø 700 | 0,90 | 1300 | wynikowo | wynikowo |
| Ø 750 | 0,90 | 1300 | wynikowo | wynikowo |
| Ø 800 | 1,00 | 1450 | wynikowo | wynikowo |
| Ø 850 | 1,00 | 1450 | wynikowo | wynikowo |
| Ø 900 | 1,00 | 1650 | wynikowo | wynikowo |
Gdy kolektor jest wyposażony w luźne kołnierze, L1 jest przedłużany o 2 x 50 mm.
Ograniczenia wymiarowe:
A=C, A≥B, A=C może wynosić maks. 1000 mm.
L2, L3 wyznaczane są obliczeniowo.