Wentylator kanałowy TYWENT PFK-400/4

Wentylator kanałowy Tywent PFK-400/4

Wentylator kanałowy z wirnikiem promieniowym o napędzie bezpośrednim przystosowany do montażu bezpośrednio w prostokątnych kanałach wentylacyjnych, w instalacjach wentylacyjnych, klimatyzacyjnych, ogrzewczych itp. Wentylatory przystosowane do pracy ciągłej w trudnych warunkach. Charakteryzuje się głośniejszą pracą i większą odpornością na zanieczyszczenia niż wentylatory z wirnikami bębnowymi. Temperatura czynnika przepływającego od -25oC do +60oC. Temperatura otoczenia do +40oC.

Konstrukcja

Obudowa wentylatora oraz wirnik wykonane są z blachy stalowej malowanej proszkowo. Zastosowano silnik trójfazowy o stopniu ochrony IP 55, przystosowany do regulacji obrotów.

Dane techniczne

Dane techniczne

 

Wydajność max

[m3/h]

Spręż max.

[Pa]

Moc

[kW]

Obroty

[obr/min]

Zasilanie

[V]

Głośność

[dB]

Masa

[kg]

7100 760 1.1 1400 400 78 102

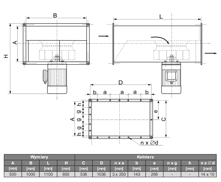
Wymiary

Wymiary