|
Informacje |
Seria zasuw szczelnych i zasuw standardowych - bez uszczelniacza - obejmuje wszystkie standardowe średnice od 80 mm do 500 mm, dopasowane do systemu rur. Zasuwy wykonane są z blachy ocynkowanej. Zasuwy mogą być dostarczane jako regulowane ręcznie, jak i z pełną automatyką z użyciem silnika elektrycznego lub siłownika automatycznego. Tak jak w systemach rurowych, jest tu wiele możliwości szybkiego i efektywnego łączenia, w zależności od wymaganej wytrzymałości i szczelności.
Zasuwy odcinające z uszczelniacze są produkowane z blachy stalowej ocynkowanej grubości 0,9mm. Uszczelki z PEHD i poliesteru zapewniają szczelność i łatwe przesuwanie.
Dane techniczne |
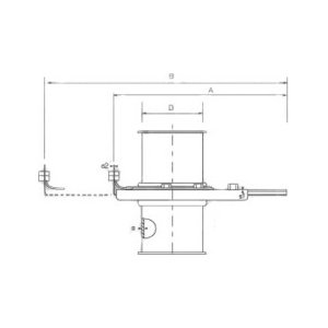
| D [mm] |
s [mm] |
s1 [mm] |
s2 [mm] |
A [mm] |
B [mm] |
C [mm] |
L [mm] |
Waga [kg] |
|---|---|---|---|---|---|---|---|---|
| 80 | 0,90 | 1,25 | 1,5 | 225 | 320 | 160 | 135 | 1,20 |
| 100 | 0,90 | 1,25 | 1,5 | 265 | 380 | 190 | 135 | 1,50 |
| 120 | 0,90 | 1,25 | 2,0 | 325 | 460 | 215 | 135 | 2,10 |
| 125 | 0,90 | 1,25 | 2,0 | 325 | 460 | 215 | 135 | 2,10 |
| 140 | 0,90 | 1,25 | 2,0 | 375 | 540 | 240 | 135 | 2,90 |
| 150 | 0,90 | 1,25 | 2,0 | 375 | 540 | 240 | 135 | 2,90 |
| 160 | 0,90 | 1,25 | 2,0 | 405 | 585 | 250 | 135 | 3,20 |
| 180 | 0,90 | 1,25 | 2,0 | 455 | 655 | 290 | 135 | 4,10 |
| 200 | 0,90 | 1,25 | 2,0 | 485 | 705 | 300 | 135 | 4,40 |
| D [mm] |
s [mm] |
s1 [mm] |
s2 [mm] |
A [mm] |
B [mm] |
C [mm] |
L [mm] |
Waga [kg] |
|---|---|---|---|---|---|---|---|---|
| 225 | 1,50 | 1,50 | 2,50 | 580 | 830 | 360 | 190 | 11,0 |
| 250 | 1,50 | 1,50 | 2,50 | 660 | 960 | 385 | 190 | 12,9 |
| 275 | 2,00 | 2,00 | 3,00 | 680 | 980 | 410 | 190 | 17,8 |
| 300 | 2,00 | 2,00 | 3,00 | 725 | 1045 | 435 | 190 | 18,9 |
| 315 | 2,00 | 2,00 | 3,00 | 855 | 1255 | 485 | 190 | 25,1 |
| 350 | 2,00 | 2,00 | 3,00 | 855 | 1255 | 485 | 190 | 23,3 |
| 400 | 2,00 | 2,50 | 3,00 | 1005 | 1505 | 545 | 190 | 35,9 |
| 450 | 2,00 | 2,50 | 3,00 | 1055 | 1555 | 595 | 190 | 39,6 |
| 500 | 2,00 | 3,00 | 3,00 | 1140 | 1670 | 645 | 190 | 50,5 |