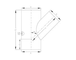
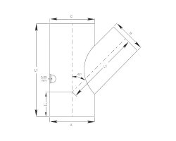
Kanały, kształtki i osprzęt do odpylania i transportu

Kanały, kształtki i osprzęt do instalacji odpylania i transportu ZWR są wykonane z blachy stalowej i służą do budowy sieci transportu pneumatycznego. Modułowa budowa systemu umożliwia proste projektowanie, wygodny montaż instalacji. Łatwość łączenia elementów za pomocą opasek DG, złączek OTW, OTS, OTU czy też kołnierzy KS powoduje prostotę rozbudowy i modyfikacji.
 
Takie zalety jak gładkie ścianki rur i kształtek oraz innych elementów systemu oraz łagodne zmiany przekrojów gwarantują niskie opory instalacji. Szeroka gama średnic od ø80 do ø1000 mm umożliwia budowę praktycznie każdej instalacji. W ofercie dostępne są również kompletne zestawy dodatków do instalowania systemów rur, wyciągów, oraz pneumatyczne urządzenia do filtracji i transportu.